International 585 XL ajokytkin

International ja uudempien Case IH-traktoreiden keskustelualue

Re: International 585 XL ajokytkin

ViestiKirjoittaja mackaiveri » 27.12.2021 15:48

Voisiko olla että punarunkoisissa on ns. vanhanmallinen kytkin jossa ei ole "välyksenpoisto jousta"?
Oheinen kuva on korjauskirjasta jonka olen tilannut joskus briteistä:
Vivustobmp.jpg
Vivustobmp.jpg (117.67 KiB) Katsottu 8059 kertaa


Tässä ei näy mittään jousta vetämään vipua alas.

Kuva on kirjasta Tractor Manuals Scotland:
Kansi.jpg
Kansi.jpg (113.74 KiB) Katsottu 8059 kertaa


Tuossa muuten huomasin että pitää irroittaa vasen tankki, että saa kytkimen käyttöakselin pois.
Luulen että PTO käyttöakselin olevan vaihtokunnossa, ja tätä ei voi vaihtaa ennenkuin
kytkimen käyttökseli on irti (se akseli joka on painelaakerin yläpuolella).
Sen minkä tinkii, ei tarvii maksaa.....
mackaiveri
 
Viestit: 147
Liittynyt: 30.05.2016 21:26
Paikkakunta: Salo

Re: International 585 XL ajokytkin

ViestiKirjoittaja IH 674 » 27.12.2021 16:38

Niissä taisi olla irrotus ongelmia, ja lisättiin jousi, että liikematka
pysyy maksimaalisena. Kytkin on osiltaan samat, paitsi isommissa malleissa
on halkaisialtaan suurempi ja asetelma on eri mallinen.
Avatar
IH 674
 
Viestit: 1080
Liittynyt: 03.03.2014 20:34

Re: International 585 XL ajokytkin

ViestiKirjoittaja mackaiveri » 23.02.2022 10:52

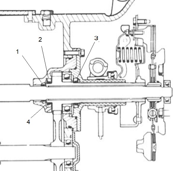
Tällainen kysymys tuli mieleen. Onko kukaan vaihtanut kytkinakselin stefoja 1,2,3 kytkinremontin yhteydessä.
Pystyykö osan 4 irroittamaan ilman alemman PTO rattaan iroitusta?
Stefat.jpg
Stefat.jpg (75.79 KiB) Katsottu 7194 kertaa
Sen minkä tinkii, ei tarvii maksaa.....
mackaiveri
 
Viestit: 147
Liittynyt: 30.05.2016 21:26
Paikkakunta: Salo

Re: International 585 XL ajokytkin

ViestiKirjoittaja IH 674 » 23.02.2022 12:22

Jos ei ole pikavaihdetta niin onnistuu.
Tiiviste 2 on muuttunut erilaiseksi, eikä sitä saa enään.
Tiinistesarjassa on uusi malli joka on halkasijaltaan pienempi,
sitävarten pitää tehdä sovitusholkki ulkokehälle.

Voi se kyllä sopia ilman sovitetta, en nyt muista milloin muuttui.
Tiiviste 2 on tavallaan nurinpäin, eli toisinpäin kuin ykkönen.
Avatar
IH 674
 
Viestit: 1080
Liittynyt: 03.03.2014 20:34

Re: International 585 XL ajokytkin

ViestiKirjoittaja mackaiveri » 24.02.2022 09:00

Ihan Perusvaihteistolla on, ilman pikavaihdetta.
Tuollainen tiivistesarja ei tunne eri kokoisia keskimmäistä stefaa:
https://www.qtponline.com/products/inpu ... 51261.html

Katoin netin varaosakirjaa ja 2.stefa ("keskistefa") on mitoilla 39.24mmID / 57.35mmOD / 8mm THK joka oli kaikissa näissä malleissa 474, 674, 584, 585.


Malleissa 495 ja 595 rakenne on muuttunut kokonaan, johtunee ehkä pikavaihteesta.
Sen minkä tinkii, ei tarvii maksaa.....
mackaiveri
 
Viestit: 147
Liittynyt: 30.05.2016 21:26
Paikkakunta: Salo

Re: International 585 XL ajokytkin

ViestiKirjoittaja IH 674 » 24.02.2022 12:18

Pikavaihteeton on erilaisilla tiivisteillä, olen niitä vähemmän avannut. :oops:
Täytelevy josta puhuin on numerolla 1277443C1 jota ei taida enää saada.
Avatar
IH 674
 
Viestit: 1080
Liittynyt: 03.03.2014 20:34

Re: International 585 XL ajokytkin

ViestiKirjoittaja mackaiveri » 24.02.2022 15:40

Mun koneessahan tuota ei onneksi ole.

Mutta missä sen renkaan pitäsi sijaita TA mallissa?:
TA.jpg
TA.jpg (67.6 KiB) Katsottu 7172 kertaa



Se on tuon näköinen
1277443C1.jpg
1277443C1.jpg (49.8 KiB) Katsottu 7172 kertaa
Sen minkä tinkii, ei tarvii maksaa.....
mackaiveri
 
Viestit: 147
Liittynyt: 30.05.2016 21:26
Paikkakunta: Salo

Re: International 585 XL ajokytkin

ViestiKirjoittaja IH 674 » 24.02.2022 17:48

TA versiossa ne tiivisteet on samassa paikassa, kuin tavallisessakin
Kuvissa kun vertaa tiivisteen paikka näyttää samankokoiselta kummassakin.
Siellä vo olla kumpi versio vaan.
Avatar
IH 674
 
Viestit: 1080
Liittynyt: 03.03.2014 20:34

Re: International 585 XL ajokytkin

ViestiKirjoittaja IH 674 » 25.02.2022 11:12

Edellisestä jäi pois missä on täyterenkaan paikka
se on sisemmän eli takimmaisen stefan kehällä 1277445C1 Stefa
Tuo tuskin koskee -85 sarjan koneita.
Avatar
IH 674
 
Viestit: 1080
Liittynyt: 03.03.2014 20:34

Re: International 585 XL ajokytkin

ViestiKirjoittaja mackaiveri » 29.06.2022 07:55

Hei

Homma on päässyt alkuun ja vaikeuksien kautta sain traktorin poikki.

Sain lainaan katkaisuradan, yritin ensin hallitunkilla ja pullotunkilla, mutta tuli liian heiveröinen.

Vikalistaa alla:
Vaihteistoöljyt vuotaa kytkmen akselille, kolme uutta stefaa sinne.
Booriholkki vaihtoon, vaikka ei se ole pahassa kunnossa.
Kytkimen irroitusongelma johtuu pikeentyneestä liasta, joka jumittaa paineasetelmaa.
Työsylinterin tiivisteet vaihtoon varmuuden vuoksi.
Kampuran stefan vaihdan myös, vaikka ei vuoda.

Katkaisu.jpg
Katkaisu.jpg (229.36 KiB) Katsottu 5900 kertaa


Booriholkki.jpg
Booriholkki.jpg (155.76 KiB) Katsottu 5900 kertaa


uudet osat.jpg
uudet osat.jpg (222.36 KiB) Katsottu 5893 kertaa







PS. ja niin, tässä punarunkoisessa 585 mallissa ei ole kytkimen vivussa "välyksenpoistojousta"
Sen minkä tinkii, ei tarvii maksaa.....
mackaiveri
 
Viestit: 147
Liittynyt: 30.05.2016 21:26
Paikkakunta: Salo

EdellinenSeuraava

Paluu International traktorit

Paikallaolijat

Käyttäjiä lukemassa tätä aluetta: Ei rekisteröityneitä käyttäjiä ja 27 vierailijaa